
Rebar detailing services
Rebar detailing services
Various types of clients including structural engineers, designers, steel erectors, contractors and fabricators approach us for better rebar detailing services.
Besides possessing highly skilled team members and using best technology software, we at Mikab always follow international standards and codes strictly in our services. They are the following:
-
American Society of Testing Materials (ASTM)
-
Concrete Reinforcing Steel Institute (CRSI)
-
British Standards (BS)
-
American Concrete Institute (ACI)
-
Australian Standards (AS)
The client-based approach of Mikab makes the team able to formulate strategies based on the inputs given by the clients and their schedules on a fixed time.
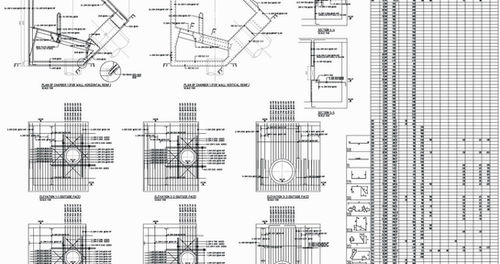
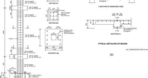
The rebar detailing services offered by Mikab include:
-
Rebar placement drawings
-
Bar bending schedules
-
Rebar concrete shop drawings
-
Concrete masonry detailing
-
As built drawing services
-
Rebar foundation detailing
-
Rebar fabrications
-
Structural components detailing
-
Rebar detailing for scheduling
-
Retaining wall detailing
-
Rebar design solutions
-
Foundation drawing services
-
Rebar estimation services
-
Detailing for building components
Why choose Mikab for rebar detailing services
The main aim of Mikab is nothing but providing high quality, but cost effective services with timely delivery. Advantages of choosing us for rebar detailing services are many.
-
Our potential conduct a thorough groundwork and requirement analysis before starting the work forges sustainable solutions to the needs of the clients.
-
Our experienced and skilled team of technicians and engineers are capable of dealing with various rebar detailing projects of all types and complexity efficiently
-
We give equal preference to all clients.
-
Our team of expert work hard to make each project a success no matter whether it is big or small.
Mikab always try to keep a good relationship with their clients by providing a practical and realistic rebar detailing solutions within the pre-decide time and budget.















