
HVAC drafting services
HVAC drafting services
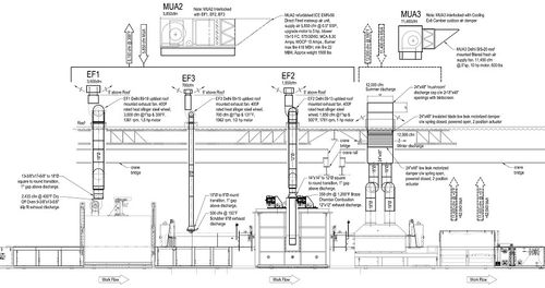
Mikab offers energy efficient HVAC solutions with an aim of providing an optimum utilization of renewable resources for superior HVAC systems.
We provide accurate, reliable and flexible solutions to the clients that will help them get ample time to focus on HVAC drawings, HVAC Duct design and HAVC system design. Some of the special features of our HVAC drafting services are as follows.
-
Affordable pricing
-
High accuracy and use advanced technology
-
We help reduce drastic operating expenses
-
We possess highly talented professionals
-
We deliver the work done in short period of time
Mikab offers the most precise and cost effective HVAC drafting services for a wide range of clients including contractors, homeowners, residential builders etc. We specialize in all types of heating and air-conditioning systems, duct design, duct sizing and layout, kitchen hoods and exhausts, garage and restroom ventilation for industrial and commercial purposes.
Some of our main HVAC drafting services include:
-
Gas piping design and schematics
-
Onsite consulting
-
Plan review and value engineering
-
Forced ventilation
-
Natural ventilation
-
Manual D duct designs
-
Manual J, N, S load calculations
-
Smoke evacuation
-
Thermal assessment for occupant comfort
-
HVAC estimation
-
Upgrading existing HVAC systems
-
Coordinating I joist Precut Duct Opening
-
Green building solutions and energy efficiency
Advantages of choosing Mikab for HVAC drafting services
The ultimate aim of Mikab is to fulfill the clients’ need in the best possible method.
-
We the incorporate all clients’ inputs into detailed working drawings.
-
We plan a project and provide a realistic estimate that will fit within a specified budget.
-
Our HVAC drafting services create no user discomfort with any type of breakdown, improper ventilation or poor air quality.
The flexibility and transparency of our work make us able to achieve the trust of our clients and improve our reputation as one of the best HVAC service providers in the industry.


















